Thông tin cơ bản bồn cầu 1 khối TOTO CS921VT/TCF83410GAA/T53P100VR:
- ✅Bàn cầu của thương hiệu thiết bị vệ sinh TOTO
- ✅Màu điều khiển: Trắng
- ✅Hệ thống xả: Tornado
- ✅Loại xả: xả tự động
- ✅Lượng nước sử dụng: 3.8/3.0 (L)
- ✅Áp lực nước sử dụng: 0.05 ~ 0.75 (Mpa)
- ✅Nguồn điện sử dụng: 220~240 (V), 50/60 (Hz
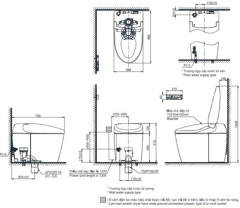
- ✅Tâm xả: 305mm
- ✅Kích thước sản phẩm: L690 x W386 x H515 (mm)
- ✅Vật liệu: Sứ vệ sinh

Hình ảnh: Bồn cầu thông minh TOTO CS921VT/TCF83410GAA/T53P100VR
Chi tiết phụ kiện Toto NEOREST RS CS921VT TCF83410GAA T53P100VR
NEOREST RS CS921VT/TCF83410GAA/T53P100VR bao gồm:
- ✅Thân cầu: CS921VT; Xuất xứ: Nhật Bản
- ✅Nắp rửa điện tử/ Washlet: TCF83410GAA; Xuất xứ: Ma-lai-xi-a
- ✅Bích nối sàn: T53P100VR ; Xuất xứ: Việt Nam
Tính năng bồn cầu điện tử TOTO CS921VT/TCF83410GAA/T53P100VR:
- ✅Hệ thống xả Tornado, Hybrid sinh thái siêu mạnh, siêu êm, tiết kiệm nước
- ✅Bảng điều khiển từ xa
- ✅Công nghệ khử trùng Ewater+; vòi rửa, lòng bàn cầu, bệ ngồi
- ✅Tự động đóng/mở nắp, sưởi ấm nắp ngồi, khử mùi, sấy khô
- ✅Vòi rửa phun massage đa chức năng
- ✅Xả tự động
Bản vẽ kỹ thuật bồn cầu vệ sinh TOTO CS921VT/TCF83410GAA/T53P100VR:

Hình ảnh: Bồn cầu điện tử TOTO CS921VT/TCF83410GAA/T53P100VR