Huge là nhãn hiệu thiết bị vệ sinh cao cấp trên thế giới công nghê sản xuất tại Đức về sen vòi bởi chất lượng, tính thẩm mỹ, tính chính xác và sự độc đáo.
Thông tin cơ bản về sen tắm huge H-6200S2:
- ✅Tên sản phẩm: Sen tắm
- ✅Mã sản phẩm: H-6200S2
- ✅Chất liệu: Đồng thau
- ✅Màu sắc: Gold
- ✅Bộ sưu tập: Aladdin rose gold
- ✅Bát sen:
- ✅Loại sản phẩm: Sen tắm nhiệt độ cao cấp
- ✅Tính năng: Khoá nhiệt ở 38 độ nên rất an toàn khi sử dụng
- ✅Công nghệ sản xuất: Đức
- ✅Thương hiệu: Huge

- ✅Bề mặt của H-6200S2 mạ đến 5 lớp niken, phủ bên ngoài 3 lớp chrome tạo độ bền đẹp vĩnh cửu. (Niken tạo độ bền, chrome tạo độ bóng đẹp tăng tính thẩm mỹ cho sản phẩm)
- ✅Tại các núm chuyển chế độ được lắp ráp bằng đồng Italia chống mòn, chống hoen rỉ
- ✅Tại các củ và bát sen đều được tích hợp nhiều lớp lọc nước như lọc sạn, lọc thô, lọc tinh để đảm bảo nước ra khỏi vòi luôn trong trạng thái siêu sạch và an toàn.
- ✅Hàm lượng chì của H-6200S2 chỉ 0,013%, trong khi mức an toàn cho phép là 0,025%, nên có thể nói H-6200S2 là sản phẩm đem lại sức khỏe cho người sử dụng, bảo vệ môi trường.
- ✅Sản phẩm sở hữu kiểu dáng sang trọng, hiện đại, màu Copper tinh tế cùng thiết kế thông minh.
- ✅Ưu điểm nổi bật của thiết bị nhà tắm Huge này đó là độ an toàn khi nhiệt độ luôn được khoá ở 38 độ C nên tuyệt đối an toàn khi sử dụng, tay nắm không quá nóng.
Thông số kỹ thuật sen tắm huge H-6200S2:
- ✅Trọng lượng sản phẩm:
- ✅Kích thước:
- ✅Lòng chậu sâu:
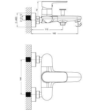
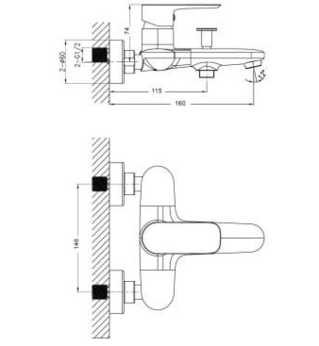
Bản vẽ kỹ thuật vòi sen tắm Huge H-6200S2:

Hình ảnh: Bản vẽ sen tắm Huge H-6200S2
Thiết bị vệ sinh cao cấp LuxBath tự hào là nhà cung cấp vòi hoa sen Huge H-6200S2 với giá thấp nhất, dịch vụ sau bán hàng tốt nhất trên thị trường.
Thông tin chi tiết liên hệ:
CÔNG TY CỔ PHẦN QUỐC TẾ LUXBATH
Liên hệ hotline 0 9 8 9 1 2 3 7 8 8 để nhận nhiều ưu đãi!