Vòi Lavabo COTTO CT4902AC là một sản phẩm của thiết bị vệ sinh Cotto. Với thiết kế đơn giản, dễ sử dụng. Sản phẩm này phù hợp với với nhiều không gian khác nhau.
Thông tin cơ bản vòi lavabo lạnh cảm ứng COTTO CT4902AC:
- Tên sản phẩm: Vòi rửa mặt lavabo cảm ứng COTTO
- Mã sản phẩm: CT4902AC
- Áp lực nước: 0.05MPa ~ 0.75MPa
- Nguồn cảm ứng: Điện
- Chất liệu: Đồng thau
- Trọng lượng: 2 kg
- Dễ lắp đặt và sử dụng
- Hãng sản xuất: COTTO
- Xuất xứ:Nhập khẩu từ Thái Lan
- Công nghệ: Thái Lan

Hình ảnh: Vòi rửa mặt lavabo COTTO CT4902AC
Đặc điểm nổi bật vòi lavabo COTTO CT4902AC:
- COTTO CLEAN: Kiểm soát kim loại nặng (chì, cadmium, đồng, kẽm)
- Mạ Chrome: Được phủ lên đến 8 Micron Nickel-Chromium
- Flexi Aerator:Chức năng Điều chỉnh thông gió và tự vệ sinh
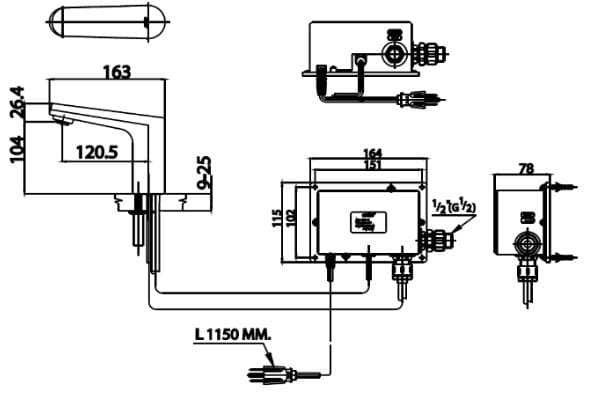
Bản vẽ kỹ thuật Vòi lavabo lạnh cảm ứng COTTO CT4902AC dùng điện:

Hình ảnh: Bản vẽ kỹ thuật Vòi lavabo lạnh cảm ứng COTTO CT4902AC dùng điện
Thiết bị phòng tắm cao cấp LuxBath tự hào là nhà cung cấp Vòi rửa mặt lavabo COTTO CT4902AC với giá tốt nhất, dịch vụ sau bán hàng tốt nhất trên thị trường.
Hãy liên hệ với chúng tôi để đươc tư vấn và mua được sản phẩm với giá tốt nhất:
CÔNG TY CỔ PHẦN QUỐC TẾ LUXBATH
Hãy liên hệ số 0 9 8 9 1 2 3 7 8 8 để tư vấn và phục vụ!