Huge là nhãn hiệu thiết bị vệ sinh cao cấp trên thế giới công nghê sản xuất tại Đức về sen vòi bởi chất lượng, tính thẩm mỹ, tính chính xác và sự độc đáo.
Thông tin cơ bản về sen tắm âm tường Huge H-ST666N:
- ✅Tên sản phẩm: Sen tắm
- ✅Mã sản phẩm: H-ST666N
- ✅Loại sản phẩm: Sen âm tường cao cấp
- ✅Màu sắc: Chrome
- ✅Bộ sưu tập: Pamela
- ✅Chất liệu: H-ST066P được làm từ đồng thau
- ✅Thương hiệu: Huge
- ✅Công nghệ sản xuất: Đức
- ✅An toàn: Khoá nhiệt ở 38 độ nên không gây bỏng
- ✅Công nghệ sản xuất: Đức
- ✅Thương hiệu: Huge

Tính năng nổi bật nắp vòi hoa sen âm tường Huge H-ST666N:
- ✅Sen được thiết kế âm tường nên giúp tiết kiệm tối đa diện tích, đem lại sự tinh tế cho không gian phòng tắm. Đặc biệt, sản phẩm sở hữu tone mà chrome quyến rũ, từng chi tiết được làm một cách hoàn hảo nhất.
- ✅Đây là một sản phẩm tuyệt vời cho mọi gia đình nhất là những gia đình có trẻ em, người già, phụ nữ mang thai, thiết kế thông minh khi khoá nhiệt ở 38 độ C nên không bị bỏng, luôn luôn an toàn khi sử dụng.
- ✅Nước khi ra khỏi vòi đã được trải qua quá trình lọc nhiều lần nên rất sạch sẽ
- ✅Bát sen hình vuông, khi mở vòi sen ra nước sẽ nhẹ nhàng chảy từ đầu đến chân tạo thành như một dòng thác sẽ cuốn trôi mọi buồn phiền trong ngày.
Thông số kỹ thuật sen tắm Huge H-ST666N:
- ✅Trọng lượng sản phẩm:
- ✅Kích thước:
- ✅Lòng chậu sâu:
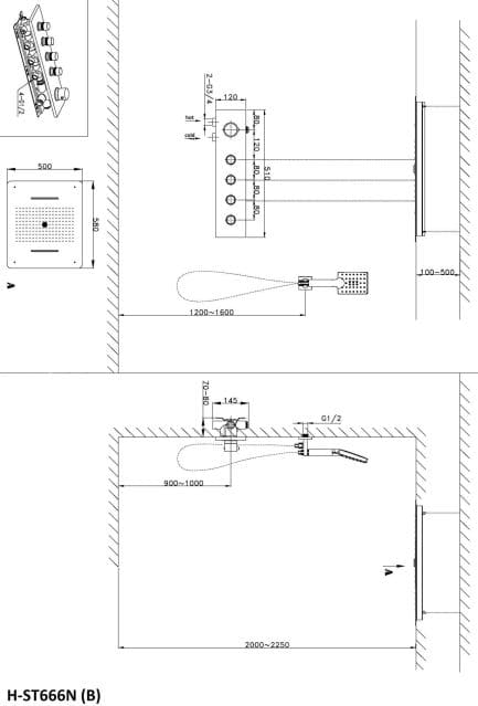
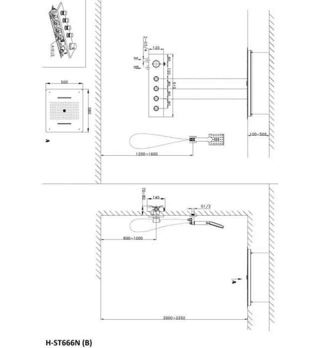
Bản vẽ kỹ thuật sen tắm âm tường Huge H-ST666N:

Hình ảnh: Bản vẽ sen tắm Huge H-ST666N
Thiết bị vệ sinh cao cấp LuxBath tự hào là nhà cung cấp vòi hoa sen Huge H-ST666N với giá thấp nhất, dịch vụ sau bán hàng tốt nhất trên thị trường.
Thông tin chi tiết liên hệ:
CÔNG TY CỔ PHẦN QUỐC TẾ LUXBATH
Liên hệ hotline 0 9 8 9 1 2 3 7 8 8 để nhận nhiều ưu đãi!