+ Vòi lạnh:TVLC101NSR , TX109LD dùng kèm bộ xả T6JV2N + TVLF402
+ Vòi nóng lạnh: TVLM102NSR , TLS04301V , TLS01301V , TLG02301V dùng kèm bộ xả TVLF401
%20(1)%20(2).jpg)

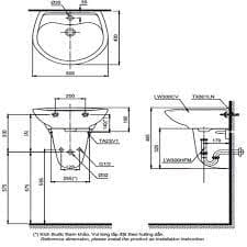
Hình ảnh: Bản vẽ kỹ thuật Chậu Rửa Mặt Treo Tường TOTO LHT300CM
Thiết bị phòng tắm cao cấp LuxBath tự hào là nhà cung cấp Chậu Rửa Mặt Treo Tường TOTO LHT300CM chính hãng.
Hãy liên hệ với chúng tôi để đươc tư vấn và nhận được giá mua tốt nhất:
CÔNG TY CỔ PHẦN QUỐC TẾ LUXBATH
Liên hệ ngay 0989123788 để được tư vấn và nhận nhiều ưu đãi!
| Kiểu dáng | Ovan, |
| Kiểu chậu | Chân lửng, |
| Chất liệu | Sứ, |
| Vị trí | Treo tường |
| Số lỗ | 1 lỗ |
| Xuất xứ | Việt Nam |
| Màu sắc | Trắng, |