Chậu rửa treo tường Inax L-288VFC được thiết kế nhỏ gọn, treo tường nên rất thích hợp những phòng tắm có kích thước nhỏ hẹp. Đem lại không gian sang trọng, tiện nghi cho không gian phòng tắm của gia đình bạn.
Thông tin chậu rửa mặt treo tường Inax L-288VFC (không chân)
- Mã sản phẩm: L-288VFC
- Tên sản phẩm: chậu rửa mặt treo tường 1 lỗ
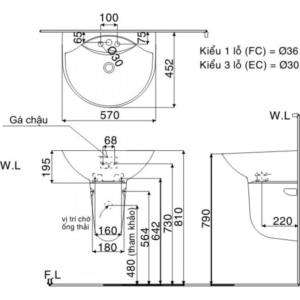
- Kích thước lỗ: Ф36
- Chất liệu sứ cao cấp
- Phủ men bóng, hạn chế vi khuẩn
- Kích thước: 563 x 460 x 546mm
- Có thể dùng với vòi: LFV-1112S , LFV-1402S , LFV-222S , LFV-11A
- SP có thể kết hợp với chân ngắn lavabo: L-288VC
- Hãng sản xuất: INAX
- Công nghệ: Nhật Bản
- Sản xuất tại: Việt Nam
- (Sp không bao gồm vòi và xi phông như hình)

Đặc điểm chậu rửa mặt treo tường Inax L-288VFC (không chân)
- Chất liệu men sứ cao cấp cùng công nghệ chống bám bẩn giúp lavobo luôn trắng sạch, đánh bay mọi vết bẩn một cách dễ dàng.
- Là loài chân lửng, ngắn, có thiết kế gọn nhẹ nhưng không kém phần hiện đại, tinh tế, được gắn lên tường giúp tiết kiệm không gian đáng kể.
Bản vẽ kỹ thuật chậu rửa mặt treo tường Inax L-288VFC (không chân):

Hình ảnh: bản vẽ kỹ thuật lavabo mặt treo tường Inax L-288VFC (không chân)
Thiết bị phòng tắm cao cấp LuxBath tự hào là nhà cung cấp chậu rửa Inax L-288VFC chính hãng với giá thấp nhất và dịch vụ sau bán hàng tốt nhất trên thị trường.
Hãy liên hệ với chúng tôi để đươc tư vấn và nhận được giá mua tốt nhất:
CÔNG TY CỔ PHẦN QUỐC TẾ LUXBATH
Hãy liên hệ 0 9 8 9 1 2 3 7 8 8 để tư vấn và phục vụ!