Bàn cầu treo tường COTTO SC19777(F) là sản phẩm kết hợp nắp điện tử với thiết kế thân dài, cùng với việc tích hợp nhiều tính năng tiện ích đến từ bộ siêu tập thiết bị vệ sinh Cotto nhập khẩu từ Thái Lan. Sản phẩm đang được nhiều khách hàng yêu thích và lựa chọn nhiều.
Thông tin bàn cầu treo tường COTTO SC19777(F):
- ✅Tên sản phẩm: bồn cầu treo tường COTTO
- ✅Mã sản phẩm: SC19777(F)
- ✅Áp lực nước: 0.05 MPa ~ 0.75 MPa
- ✅Xả nút nhấn 3/4,5L
- ✅Kiểu dáng: Treo tường, thoát ngang
- ✅Bao gồm két nước âm tường : C962170
- ✅Bao gồm nắp đậy nút nhấn xả : C942000
- ✅Hãng sản xuất: Cotto
- ✅Xuất xứ: Thái Lan

Hình ảnh: Bàn cầu treo tường COTTO SC19777(F)
Thông số kỹ thuật bàn cầu két âm tường COTTO SC19777(F):
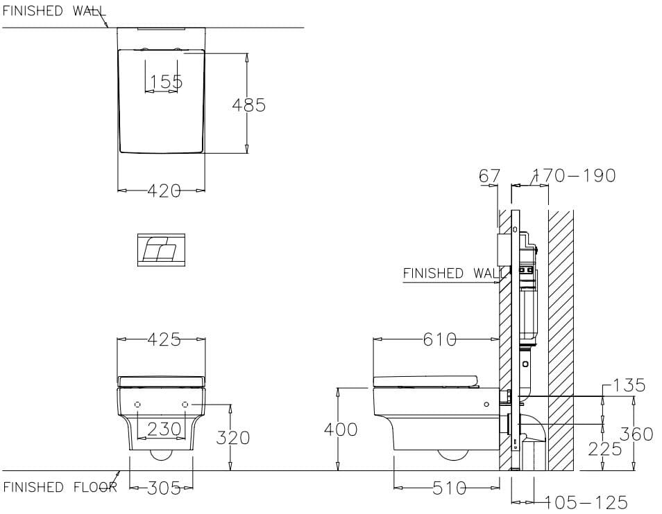
- ✅Kích thước(DxRxC): 425 x 610 x 400 mm(DxRxC)
- ✅Tâm xả: 225mm
- ✅Khối lượng: kg
- ✅Chế độ xả nhấn: 3L/4.5L
- ✅Kháng khuẩn chống bám dính: Công nghệ mới " siêu mịn" giúp tạo ra bề mặt men của sản phẩm sứ vệ sinh mịn hơn giúp ngăn ngừa bám bẩn va dễ dàng làm sạch, chống phai màu men và kháng vi khuẩn tốt nhất.
- ✅Chế độ xả 3/5 Ltiết kiệm nước: Xả sạch tất cả chỉ với 3/5 L nước 1 cách hiệu quả nhất trong thời gian sử dụng
- ✅Nắp đóng êm: Giúp tránh tiếng ồn va đập của nắp cầu và bồn cầu mang lại cảm giác thoải mái cho người sử dụng. Ngoài ra nắp bồn cầu có thể dễ dàng tháo lắp giúp việc vệ sinh bồn cầu trở nên nhanh chóng.
Tính năng nổi bật bồn cầu vệ sinh két âm tường COTTO SC19777(F):
- ✅Thiết kế sang trọng, hiện đại phù hợp với nhiều công trình
- ✅Bàn cầu nắp đóng êm không gây tiếng ồn khi sử dụng
- ✅Xả Siphong cuốn trôi mọi vết bẩn
- ✅Chiều cao thân cầu tạo cảm giác thoải mái cho người dùng
Bản vẽ kỹ thuật bàn cầu gắn tường COTTO SC19777(F):
.jpg)
Hình ảnh: Bản vẽ kỹ thuật bàn cầu COTTO SC19777(F)
Thiết bị phòng tắm cao cấp LuxBath tự hào là nhà cung cấp bàn cầu treo tường COTTO SC19777(F) chính hãng với giá thấp nhất và dịch vụ sau bán hàng tốt nhất trên thị trường.
Hãy liên hệ với chúng tôi để đươc tư vấn và nhận được giá mua tốt nhất:
CÔNG TY CỔ PHẦN QUỐC TẾ LUXBATH
Liên hệ ngay 0989123788 để được tư vấn miễn phí và nhận nhiều ưu đãi!