- ✅Tên sản phẩm: Vòi chậu rửa mặt
- ✅Mã sản phẩm: P23348-LV-CP
- ✅Thuộc bộ sưu tập: One Nazaré
- ✅Màu: Chrome bóng
- ✅Loại vòi: 3 chân, nóng lạnh
- ✅Chất liệu: Đồng
- ✅Xuất xứ: Mỹ
- ✅Hãng sản xuất: Kallista

Hình ảnh: Vòi chậu rửa mặt nóng lạnh Kallista P23348-LV-CP
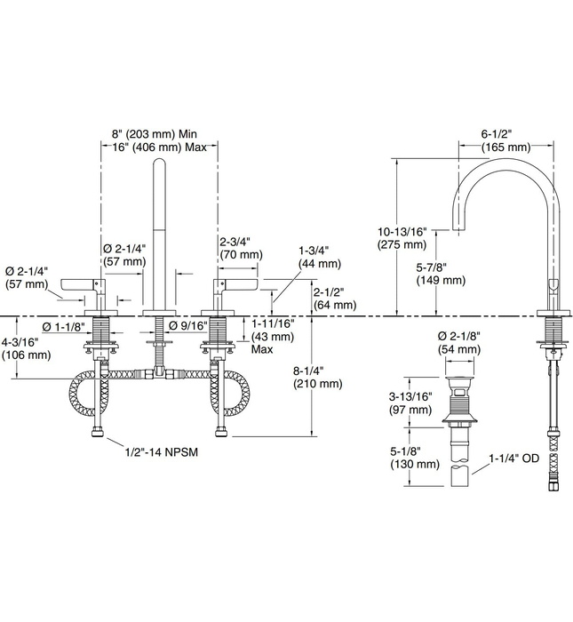
Thông số kỹ thuật của vòi rửa mặt gắn chậu Kallista P23348-LV-CP:
- ✅Khoảng cách tối thiểu từ: 203 - 406 mm
- ✅Chiều cao: 275mm
- ✅Tầm với của vòi: 165mm
- ✅Đường kính chân: Ø 57mm
- ✅Lưu lượng: 4.5 lít/phút
- ✅Áp suất: 4.1 bar
Bản vẽ kỹ thuật của vòi rửa mặt nóng lạnh 3 chân Kallista P23348-LV-CP:

Hình ảnh: Bản vẽ vòi lavabo nóng lạnh gắn chậu Kallista P23348-LV-CP
Đặc điểm nổi bật của vòi lavabo 3 chân Kallista P23348-LV-CP:
- ✅Lấy cảm hứng từ vẻ đẹp thiên nhiên được thể hiện qua những hình dáng đơn giản và khiêm tốn, vòi chậu rửa One Nazaré cổ ngỗng với tay cầm cần gạt tinh tế kết hợp chi tiết chốt bằng đồng thau độc đáo và hình dáng mềm mại phù hợp hoàn hảo với nhiều không gian
- ✅Kết cấu đồng thau chất lượng cao đảm bảo độ bền và độ sáng bóng của sản phẩm
- ✅Dòng chảy đều mang đến trải nghiệm thoải mái khi sử dụng
Thiết bị phòng tắm cao cấp LuxBath tự hào là nhà cung cấp vòi chậu rửa mặt nóng lạnh Kallista P23348-LV-CP với giá bán thấp nhất, dịch vụ tốt nhất trên thị trường.
Thông tin chi tiết liên hệ:
CÔNG TY CỔ PHẦN QUỐC TẾ LUXBATH
Hãy liên hệ 0 9 8 9 1 2 3 7 8 8 để được tư vấn miễn phí và nhận nhiều ưu đãi!